Home
Studio
Progetti
Formazione
Contatti
English
Galleria immagini per
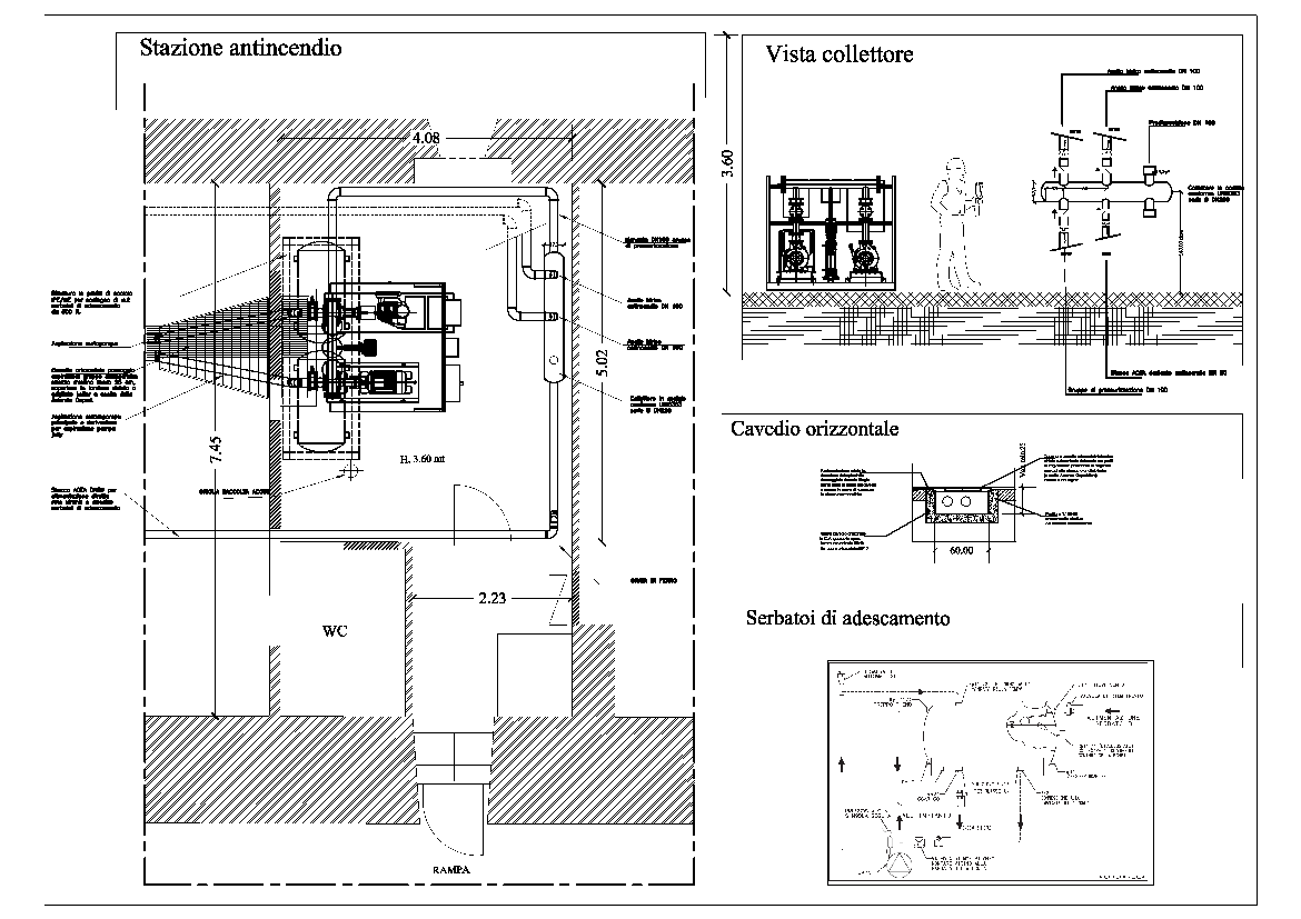
Adeguamento e normalizzazione alle disposizioni relative alla sicurezza antincendio dell’intero complesso dell’ Ospedale “Nuovo Regina Margherita” in Roma
Torna ai progetti dell'area:
Progettazione e Direzione Lavori