Galleria immagini per |
![]() |
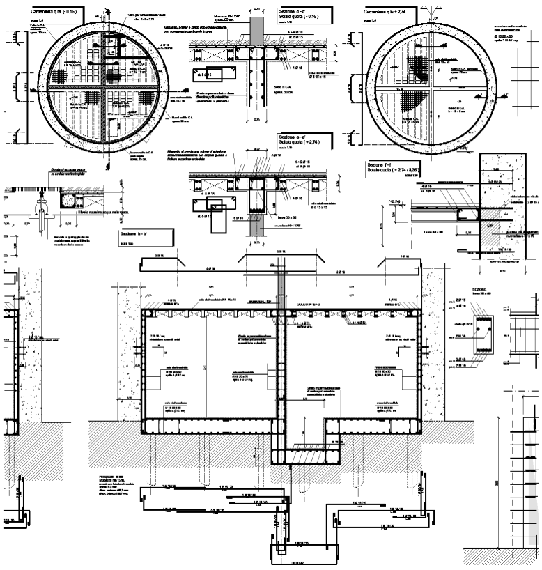
Progetto per la realizzazione di una riserva idrica a servizio degli impianti antincendio (rete idranti e sprinkler) tramite l’adeguamento strutturale di volume tecnico esistente. Complesso della Città Giudiziaria di P.le Clodio in Roma
